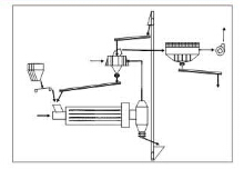
開路磨系統改成閉路磨系統特點:閉路磨與開路磨相比,可以消除過粉磨現象,可降低磨內溫度,粉磨效率高,產量高。
方案:在原有系統基礎上增加一臺高效動態選粉機,同時采用最新型磨內隔倉板、篦板裝置,并合理優化磨內結構及研磨體級配。
收益:提高產量15-25%,噸水泥電耗節約5-7度。
球磨機規格 | 系統類型 | 選粉機規格 | 產量(t/h) | 電耗(kwh/t) |
Φ3.2x13.0M | 開路 | 無 | 35-40 | 43-45 |
閉路 | O-Sepa N-1000 | 44-48 | 38-39 |
Φ3.8x13.0M | 開路 | 無 | 55-60 | 43-45 |
閉路 | O-Sepa N-2000 | 68-95 | 38-39 |
Φ4.2x13.0M | 開路 | 無 | 75-80 | 43-45 |
閉路 | O-Sepa N-3000 | 95-110 | 38-39 |
增加輥壓機預粉磨系統
特點:系統成熟可靠,工藝先進,操作穩定,產品質量佳,產量高,能耗低,節能環保。
方案:在原有系統基礎上增加一套滾壓機,同時采用最新型磨內隔倉板、篦板裝置,并對磨內結構及研磨體級配進行優化。
收益:提高75-125%,噸水泥電耗節約5-9度。
球磨機規格 | 輥壓機規格 | V選規格 | 產量(t/h) | 電耗 |
Φ3.2x13.0M | 無 | 無 | 44-48 | 38-40 |
CKG140-65 | CKV2500 | 95-105 | 31-33 |
Φ3.8x13.0M | 無 | 無 | 68-74 | 38-40 |
CKG150-90 | CKV3000 | 130-140 | 31-33 |
Φ4.2x13.0M | 無 | 無 | 95-105 | 38-40 |
CKG180-120 | CKV4000 | 190-230 | 31-33 |

半終粉磨系統改造
特點:出輥壓機的半產品先經過選粉機分選,細粉進入成品,粗粉入磨,降低了球磨機的過粉磨現象,從而提高粉磨效率,系列產量提高。
方案:在原有系統基礎上增加一臺三分離動態選粉,同時采用最新型磨內隔倉板、篦板裝置,并合理優化磨內結構及研磨體級配。
收益:提高產量15-30%,每噸水泥磨電耗節約5-10度。
球磨機規格 | 輥壓機規格 | V選規格 | 選粉機規格 | 產量(t/h) | 電耗 |
Φ3.2x13.0M | CKG140-65 | CKV2500 | O-Sepa N-2000 | 95-105 | 35-38 |
增加三分離選粉機 | 105-125 | 28-31 |
Φ3.8x13.0M | CKG150-90 | CKV3000 | O-Sepa N-3000 | 130-140 | 35-38 |
增加三分離選粉機 | 140-170 | 28-31 |
Φ4.2x13.0M | CKG180-120 | CKV4000 | O-Sepa N-4000 | 190-210 | 35-38 |
增加三分離選粉機 | 210-240 | 28-31 |

生料系統改成輥壓機終粉磨系統
特點:系統整機裝機設備少,結構緊湊,工藝先進,流程簡單,操作穩定,維護容易。
方案:把原有球磨機系統拆除,重新安裝輥壓機系統。
收益:產品細度R80篩余下降4%,易燒性提高,噸生料電耗節約7-11度。
生產規模 | 產量(t/h) | 系統 | 規格 | 細度 | 電耗(kwh/t) |
2000t/d | 130-170 | 輥壓機 | CKG150-100 | R80=12-16% | 13-15 |
球磨 | Φ4.2x(10.0+3.0)M | R80=16-20% | 22-24 |
2500t/d | 180-220 | 輥壓機 | CKG180-120 | R80=12-16% | 13-15 |
球磨 | Φ4.6x(10.0+3.5)M | R80=16-20% | 22-24 |
3200t/d | 280-320 | 輥壓機 | CKG180-160 | R80=12-16% | 13-15 |
球磨 | Φ4.2x(10.0+3.0)M | R80=16-20% | 22-24 |
5000t/d | 380-420 | 輥壓機 | CKG200-180 | R80=12-16% | 13-15 |
球磨 | Φ4.2x(10.0+3.0)M | R80=16-20% | 22-24 |
